ベクトル
まず,ベクトルの定義を理解しよう.
- 有向線分$\rm AB$→点$\rm A$から点$\rm B$に向かう向きを指定した線分
- 有向線分$\rm AB$の始点→$\rm A$
- 有向線分$\rm AB$の終点→$\rm B$
- ベクトル→向きと大きさのみで定まる量
ベクトル$\overrightarrow{a}=\overrightarrow{\rm AB}$→$\overrightarrow{a}$は有向線分$\rm AB$で定まるベクトル - スカラー→大きさのみで定まる量
有向線分は「位置・向き・大きさ」の3つのみで決まるものであり,ベクトルは「向き・大きさ」の2つのみで決まる量である.すなわち,位置が異なる有向線分を同一視したものがベクトルである.また,スカラーは「大きさ」のみで決まる量であるため,向きが異なるベクトルを同一視したものがスカラーである.例えば,実数は大きさのみで決まる量であるから,スカラーの一種である.

ベクトルの相等
次に,2つのベクトルが等しいことの定義を理解しよう.
以下,$\overrightarrow{a},\overrightarrow{b}$をベクトルとする.
$\overrightarrow{a}$と$\overrightarrow{b}$が等しい→$\overrightarrow{a}$の向きと$\overrightarrow{b}$の向きが同じ,かつ$\overrightarrow{a}$の大きさと$\overrightarrow{b}$の大きさが等しい
このとき,$\overrightarrow{a}=\overrightarrow{b}$と表す.
ベクトルは向きと大きさのみで決まる量であるから,向きが同じで大きさが等しいベクトルは同じものとみなしてよい.
具体例で確認しよう.
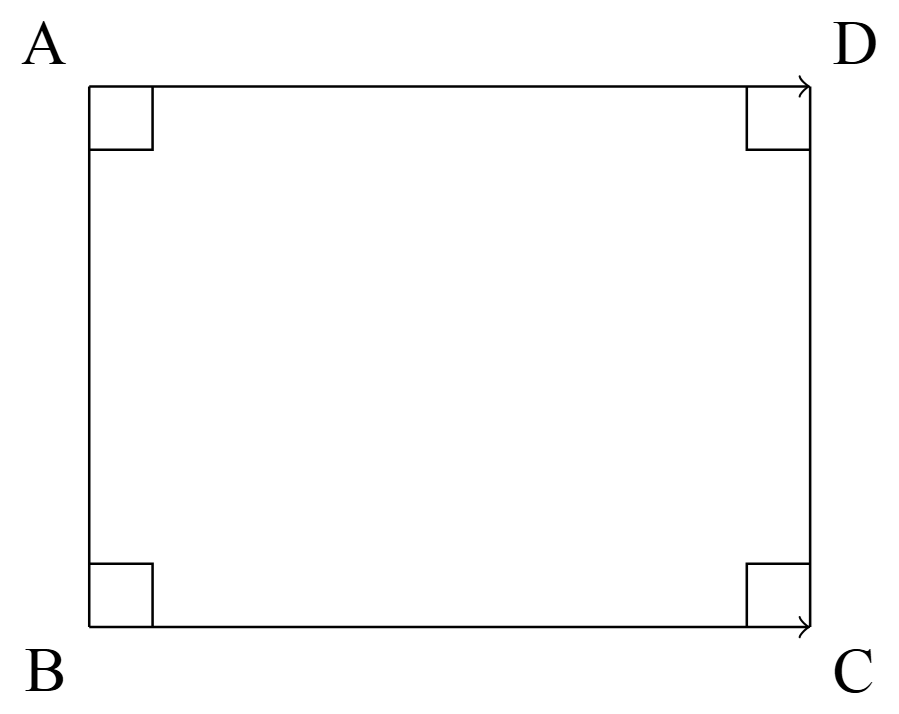
以下の長方形$\rm ABCD$において,辺$\rm AD$と辺$\rm BC$は平行であり,その長さは等しいから,$\overrightarrow{\rm AD}=\overrightarrow{\rm BC}$が成り立つ.

様々なベクトル
次に,種々のベクトルの定義を理解しよう.
- 単位ベクトル→大きさが$1$のベクトル
- $\overrightarrow{a}$の逆ベクトル$-\overrightarrow{a}$→向きが$\overrightarrow{a}$の向きと反対で,大きさが$\overrightarrow{a}$の大きさと等しいベクトル
- 零ベクトル$\overrightarrow{0}$→始点と終点が一致した有向線分で定まるベクトル
零ベクトルの大きさは$0$とし,向きは定めない.
逆ベクトルのイメージは次のようになる.

